宁晋县自然资源和规划局 关于中国石化销售股份有限公司河北邢台宁晋第五加油站扩建LNG 项目总平面图及建设工程规划许可证批前公示的通告
发布时间: 2025-11-04 发布机构:自然资源和规划局 字体:[大 中 小]
体裁分类:国土空间规划 主题分类:其他 文号: 索引号:zrzyhghj/1762243639415
宁晋县自然资源和规划局
关于中国石化销售股份有限公司河北邢台宁晋第五加油站扩建LNG
项目总平面图及建设工程规划许可证批前公示的通告
编号:工程2025013号
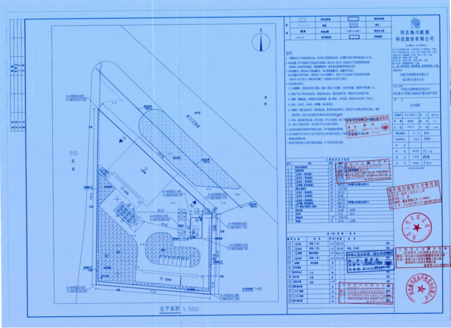
我局已完成位于邢台市宁晋县308线西南侧的中国石化销售股份有限公司河北邢台宁晋第五加油站扩建LNG项目总平面图及建设工程规划许可证批前资料的审查、审核工作,为了广泛征求意见和建议,保障利害关系人合法权益,现对该项目总平面图及建设工程规划许可证进行批前公示(内容见附图)。
公示时间:2025年11月04日—2025年11月13日。
公示地点:1、项目现场;2、局公开栏;3、政府网站。
公示反映方式:如您对该项目有不同意见和建议,您可以自接到本告知书之日起10日内持身份证明文件等有效证件,以书面形式向我局陈述您对该事项的意见和建议。逾期未提出的,视为自动放弃相关权利。
联系电话:0319-5890672
宁晋县自然资源和规划局
2025年11月03日
附图:












