来源:自然资源和规划局 时间:2025-08-20
宁晋县自然资源和规划局
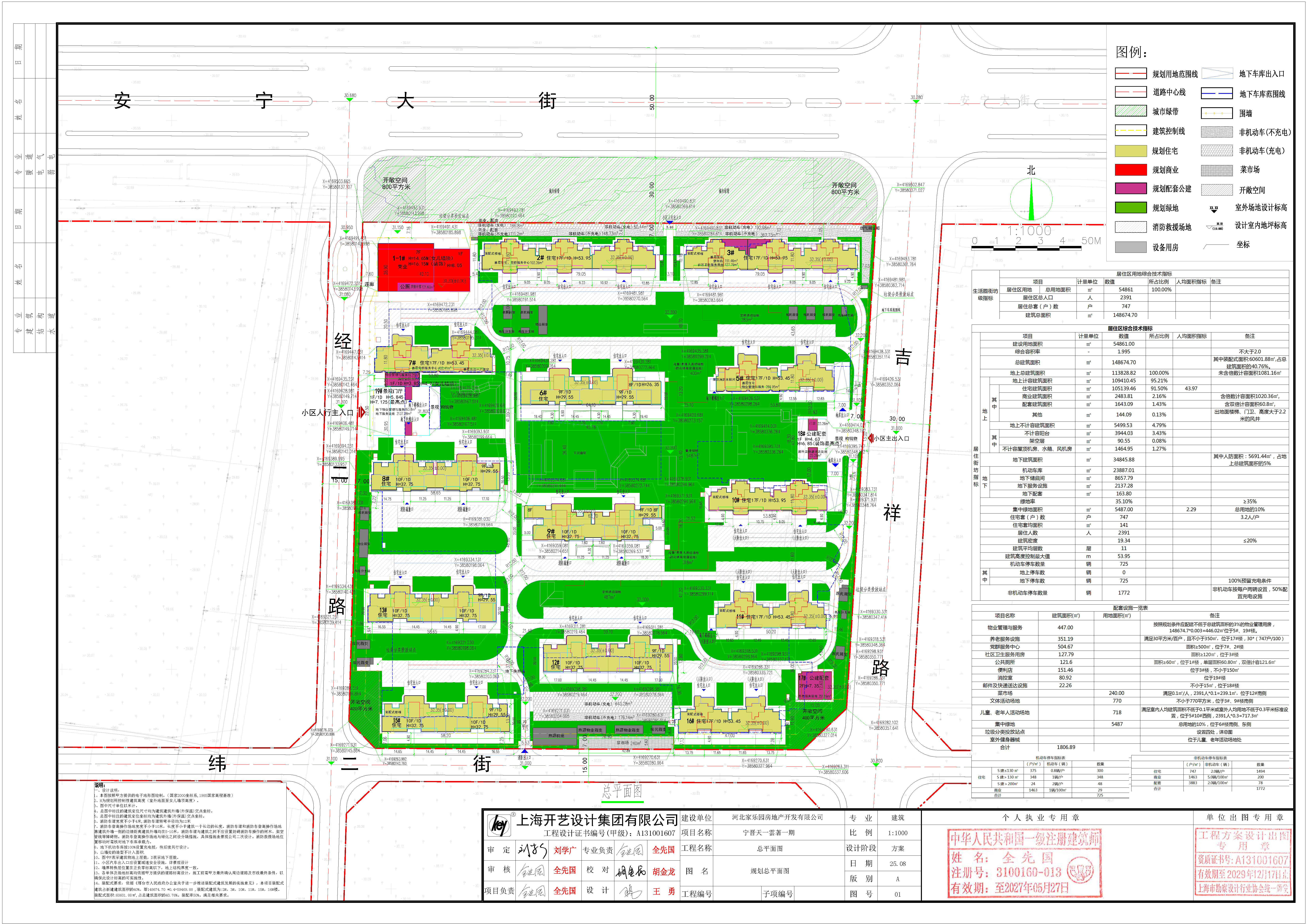
关于宁晋天一雲著一期项目总平面图及建设工程规划许可证批前公示的通告
编号:工程2025009号
我局已完成位于邢台市宁晋县安宁大街南侧、吉祥路西侧的天一雲著一期项目总平面图及建设工程规划许可证批前资料的审查、审核工作,为了广泛征求意见和建议,保障利害关系人合法权益,现对该项目总平面图及建设工程规划许可证进行批前公示。
公示时间:2025年8月20日—2025年8月29日。
公示地点:1、项目现场;2、局公开栏;3、政府网站。
公示反映方式:如您对该项目有不同意见和建议,您可以自接到本告知书之日起10日内持身份证明文件等有效证件,以书面形式向我局陈述您对该事项的意见和建议。逾期未提出的,视为自动放弃相关权利。
联系电话:0319-5890672
宁晋县自然资源和规划局
2025年8月19日
附图:

扫一扫分享到手机端