来源:自然资源和规划局 时间:2026-01-16
宁晋县自然资源和规划局
关于宁晋县晋冶科技有限公司生产高档休闲食品项目(北区)规划设计方案调整批前公示的通告
编号:调2026004号
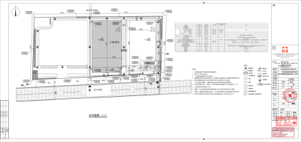
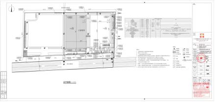
我局已完成位于宁晋县河渠镇油房村以东、规划339国道以北宁晋县晋冶科技有限公司生产高档休闲食品项目(北区)规划设计方案调整批前资料的审查、审核工作,为了广泛征求意见和建议,保障利害关系人合法权益,现对该项目调整总平面图及效果图进行批前公示。
公示时间:2026年01月16日—2026年01月26日。
公示地点:1、项目现场;2、局公开栏;3、政府网站。
公示反映方式:如您对该项目有不同意见和建议,您可以自接到本告知书之日起10日内持身份证明文件等有效证件,以书面形式向我局陈述您对该事项的意见和建议。逾期未提出的,视为自动放弃相关权利。
联系电话:0319-5890672
宁晋县自然资源和规划局
2026年01月15日
附图:
调整前:


调整后:


扫一扫分享到手机端